Features
Beautifully presented 3 Bedroom house with NO CHAIN
Bright South facing Lounge with view towards open fields
Level and private rear garden with side gate
Open fields and country walks on the doorstep. Quiet location with no road in front
EPC - B
Full Description
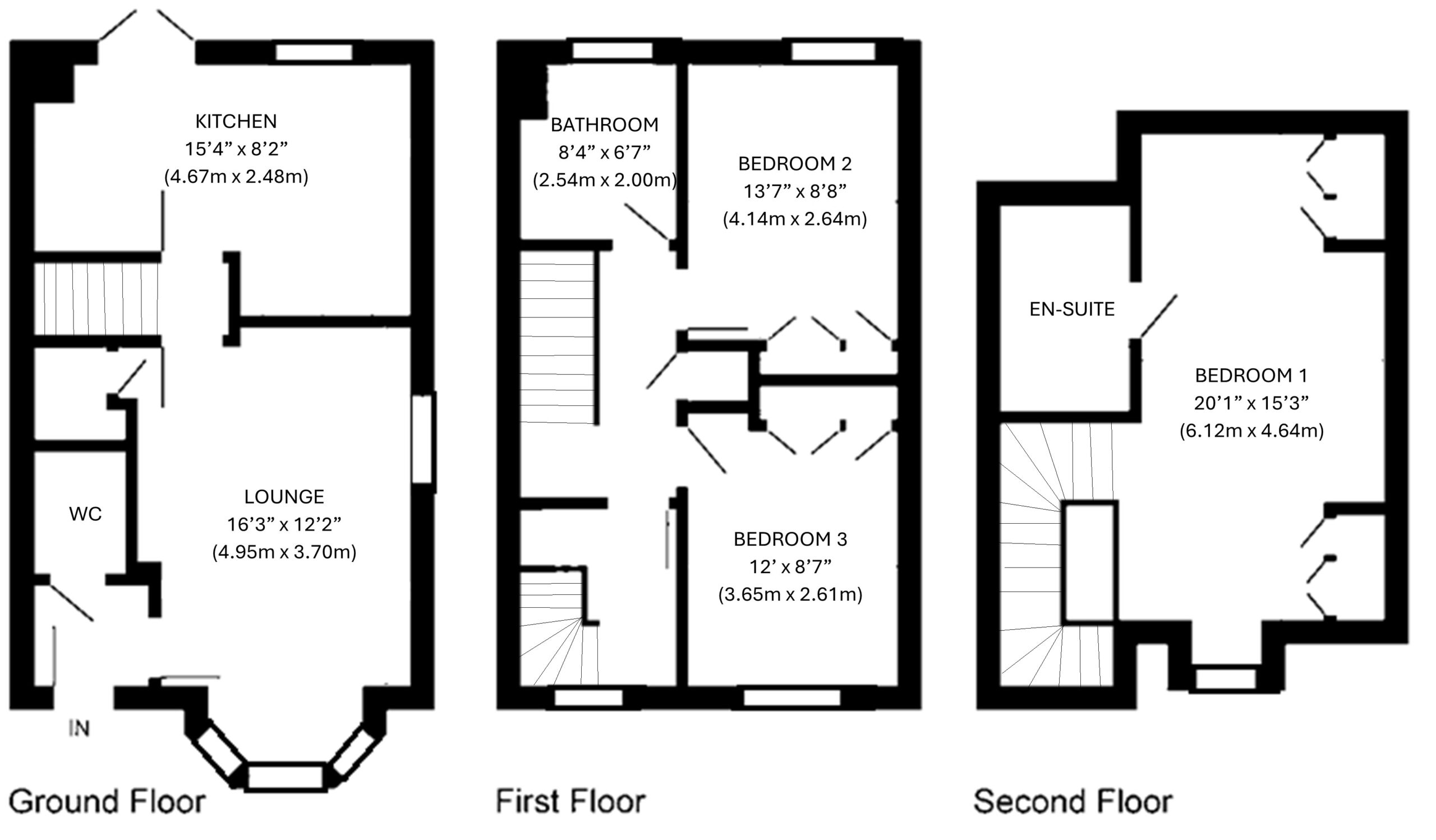
A beautifully presented and spacious 3 Bedroom semi detached house built only 4 years ago so benefitting from the balance of a new build warranty. The property is situated in an idyllic position in a quiet close with no road in front of it and open fields on the doorstep with lovely countryside walks.
Upon entering, the warmth of natural light floods the interiors, enhancing the atmosphere of the home. The front door leads to an Entrance Hall with its own ground floor Cloakroom/WC. The South facing Lounge has a bay window with views towards the fields.
The heart of the home lies a spacious Kitchen/Dining room which spans the rear of the house and has doors to the private rear garden. The kitchen is fitted with a range of modern base units with cupboards, drawers an integrated appliances, together with matching wall units. The owners have changed the original work tops for high quality white sparkling granite tops which really add a quality feel to the Kitchen. There is space for a Dining table to the other end of the room..
The house benefits from 3 large double bedrooms. The main Bedroom has its own En-suite and a bright dual aspect with some lovely views. On the middle floor are 2 further double bedrooms and a modern family bathroom.
Outside, the house has an open plan front garden and a side path with a gate to the private rear garden. The garden is laid to lawn with a patio area attracting the sun.
Nestled in a peaceful setting, residents enjoy immediate access to open fields and country walks right at their doorstep. The absence of a road in front of the property contributes to the tranquillity of the location, providing a sense of seclusion and privacy.
Moreover, the property benefits from its proximity to a range of local amenities, such as shops, schools, and bus routes, ensuring every-day convenience and accessibility to essentials and providing easy access to Brighton City Centre
The house is immaculately presented and is ready for the next lucky owner to enjoy and is offered with no chain making the whole process much quicker.
These particulars are prepared diligently and all reasonable steps are taken to ensure their accuracy. Neither the company or a seller will however be under any liability to any purchaser or prospective purchaser in respect of them. The description, Dimensions and all other information is believed to be correct, but their accuracy is no way guaranteed. The services have not been tested. Any floor plans shown are for identification purposes only and are not to scale Directors: Paul Carruthers Stephen Luck
























































































