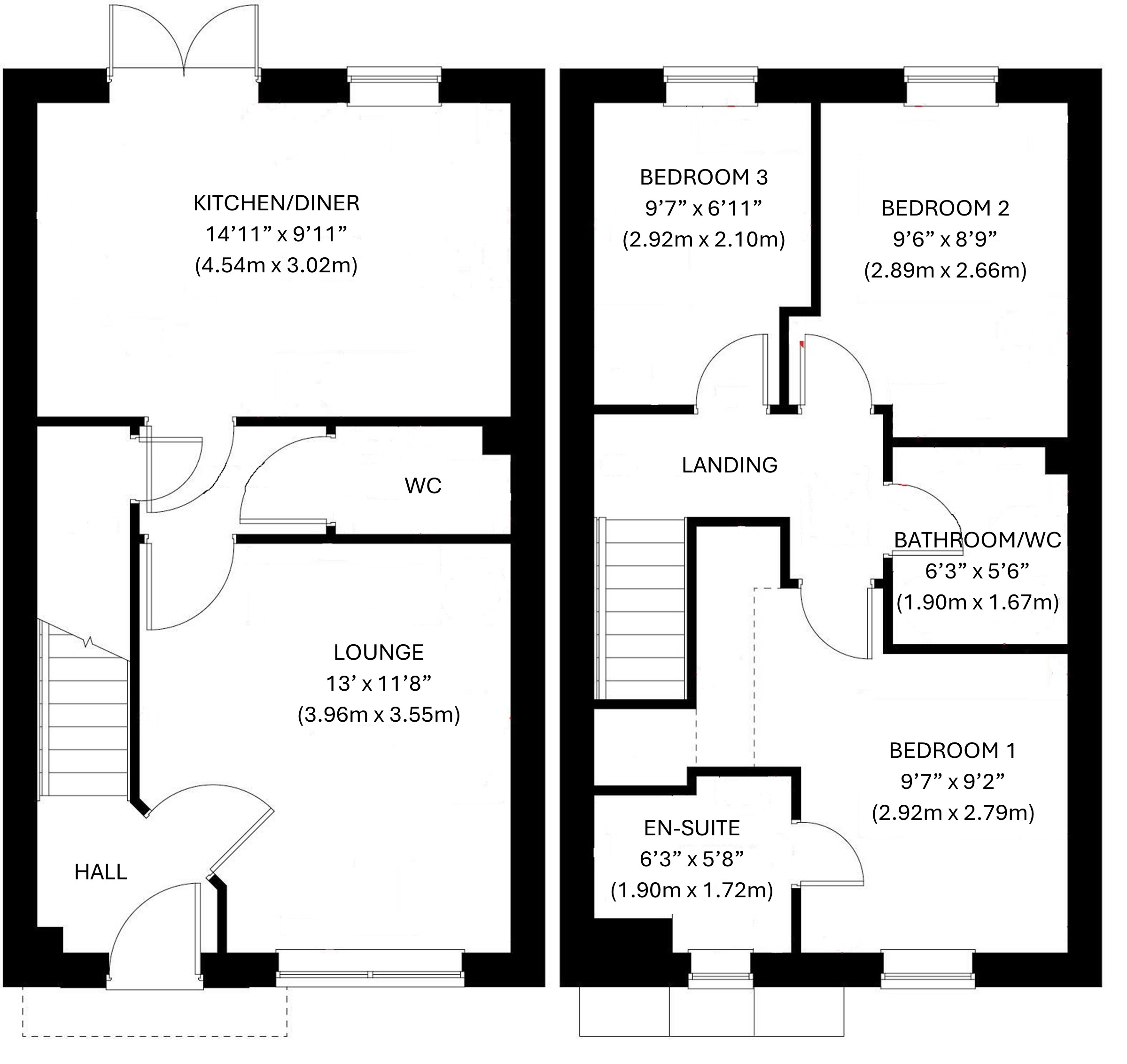
Features
Modern 3 bedroom semi-detached house build on the popular Barretts Development
Good size south facing lounge
Good size kitchen/dining room with modern high gloss units and some integrated appliances
Two allocated parking spaces
Good size low maintenance rear garden
EPC - B
Full Description
Introducing this impeccably designed, modern 3 bedroom semi-detached house nestled within the sought-after Barretts Development. This charming property offers a perfect blend of comfort and style, ideal for families or professionals seeking a contemporary living space in a convenient location.
Upon entering, you are greeted by a spacious south-facing lounge, providing ample natural light and a welcoming ambience for relaxation or entertaining guests.
The well-appointed kitchen/dining room boasts modern high gloss units, complemented by integrated appliances, offering a seamless cooking and dining experience for culinary enthusiasts.
This delightful property features three generously sized bedrooms, providing comfortable accommodation for occupants. The master bedroom boasts an en-suite shower room, while a family bathroom and a convenient cloakroom/WC cater to the needs of the household with elegant white suites and contemporary finishes.
Beyond the interior, a low maintenance rear garden awaits, providing a tranquil outdoor space for al fresco dining or leisurely moments in the fresh air. Additionally, two allocated parking spaces ensure convenience for residents, with the added bonus of an electric car charging point, alining with sustainable living practices.
Furthermore, this property comes with the assurance of the remaining 10-year NHBC building warranty, guaranteeing peace of mind for the new homeowners.
Conveniently located, this residence offers easy access to an array of amenities, including nearby parks, shops, schools, and excellent public transportation links, enhancing the quality of every-day living. The proximity to local or city centres further highlights the practicality of the location, ensuring residents can easily access key destinations with minimal hassle.
Overall, this 3 bedroom semi-detached house presents a unique opportunity to embrace modern living in a thriving community, combining comfort, style, and functionality in a desirable package. Book your viewing today to experience the allure of this remarkable property firsthand.
These particulars are prepared diligently and all reasonable steps are taken to ensure their accuracy. Neither the company or a seller will however be under any liability to any purchaser or prospective purchaser in respect of them. The description, Dimensions and all other information is believed to be correct, but their accuracy is no way guaranteed. The services have not been tested. Any floor plans shown are for identification purposes only and are not to scale Directors: Paul Carruthers Stephen Luck
































