Features
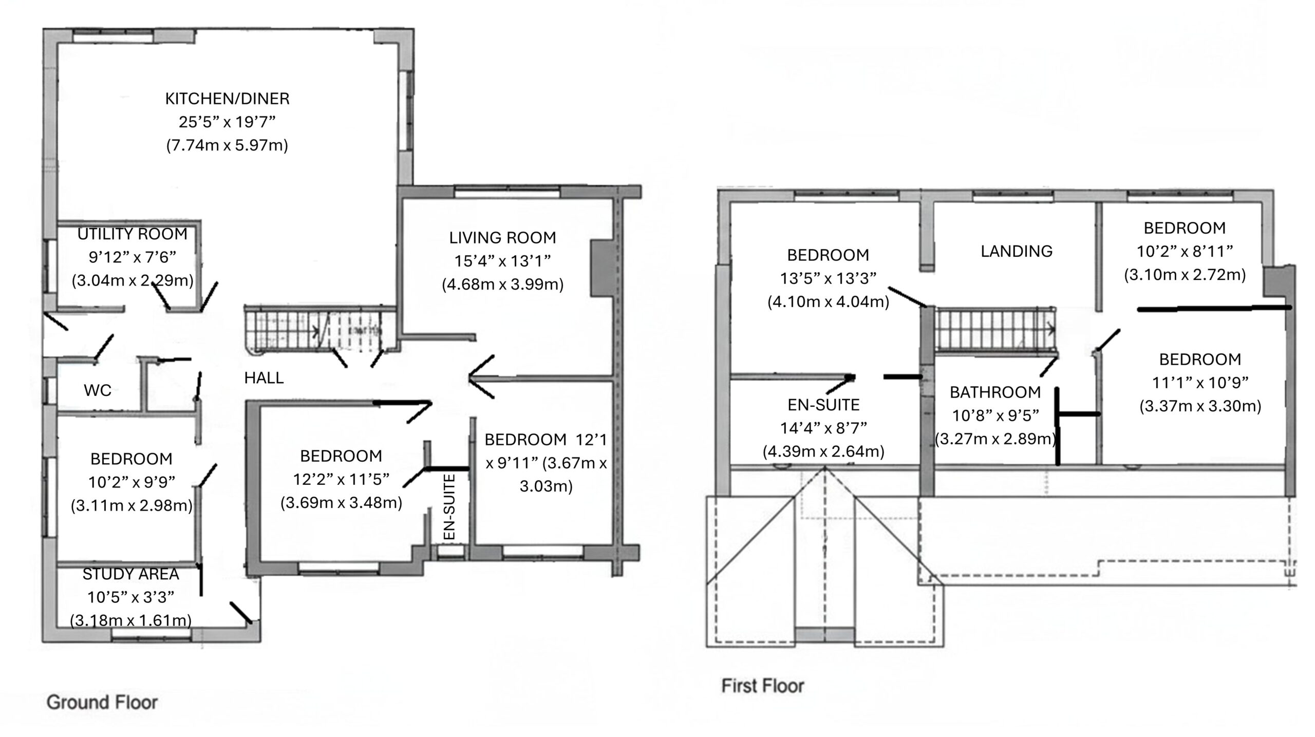
5/6 bedrooms plus study
Large south facing kitchen/dining/reception room with built in appliances and bi-folding doors to a large decked terrace
South facing lounge
Off road parking
EPC - C
Full Description
Situated in a highly sought-after elevated position, this substantial and immaculately presented detached chalet bungalow offers an exceptional standard of living with expansive rooftop views stretching towards the picturesque downland and the sparkling English Channel. The heart of the home is a stunning, generously proportioned south-facing kitchen/dining and reception room, thoughtfully designed for both every-day family living and entertaining. This impressive space features sleek appliances, ample storage, and stylish worktops, with bi-folding doors that flood the area with natural light and create a seamless transition to the outdoors. The adjoining south-facing lounge is equally bright and inviting, providing a tranquil setting to relax. The flexible layout comprises five to six spacious bedrooms, each with versatility for family, guests, or as creative spaces, in addition to a dedicated study ideal for remote working or quiet reading. The property boasts three luxuriously appointed bathrooms, each finished to a high standard with contemporary fixtures, as well as a convenient cloakroom/wc for guests.
A separate utility room enhances practicality, offering additional space for laundry and household management. The carefully considered design and generous proportions throughout ensure each room feels airy and welcoming, with the potential to adapt spaces to suit changing needs, such as converting one of the reception rooms into an extra bedroom or hobby room. The garden has views to Newhaven port, sea and surrounding countryside. Decked seating area, laid to lawn with shed and storage area under decking. The property’s location is particularly advantageous, with easy access to local amenities including shops, well-regarded schools, and public transport links, ensuring convenience for daily commutes and leisure activities.
The nearby town centre is within easy reach, offering access to a variety of local shops, Wave Leisure Centre, Newhaven Port, Train Station and bus services to Brighton City Centre and Eastbourne Town Centre.
These particulars are prepared diligently and all reasonable steps are taken to ensure their accuracy. Neither the company or a seller will however be under any liability to any purchaser or prospective purchaser in respect of them. The description, Dimensions and all other information is believed to be correct, but their accuracy is no way guaranteed. The services have not been tested. Any floor plans shown are for identification purposes only and are not to scale Directors: Paul Carruthers Stephen Luck










































































